VILLA T
A distinguished residence set on 6 are, thoughtfully designed for both comfort and style.
USD $ 650,000
( IDR 10,725,000,000 )
FOR SALE - LEASEHOLD
ECHO BEACH - CANGGU
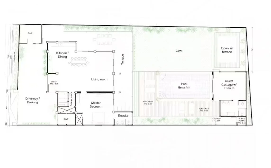
Step inside through majestic doors to discover a contemporary kitchen featuring a colour palette of black, white and woody feels throughout with a marble-topped kitchen island, perfectly positioned to overlook the outdoor dining space. The well proportioned light and airy sitting room is framed with greenery from all aspects and sliding doors open to the lawn and pool area and a separate guest house and terrace.
The main house spans two levels, offering a master suite with an en-suite bathroom and dressing area, a kids dream bunk room accommodating four children, and a double bedroom with an attached playroom and en-suite. A spacious guest bedroom, also with its own bathroom, completes the thoughtful layout, making this home an inviting retreat for family and friends.
The gated entrance offers ample parking and leads to a private staff quarters at the front.
Renovated in 2024 by the owners, hessian textures and pretty tiles add interest to clean modern spaces with neutral colours complimented by well chosen cushions and rugs. This 5 bedroom home is nestled in the heart of Echo Beach, skipping distance to the beach and restaurants yet in peace and quiet.
USD $ 650,000
FEATURES & AMENITIES
• Land size 6 are
• Building size 387 sqm
• Total 5 bedrooms with bathrooms ; Master bedroom with ensuite bathroom; Kids bunk room; double bedroom with connected playroom and ensuite bathroom; double bedroom with ensuite bathroom; Guest bedroom and bathroom in garden
• Open plan kitchen, dining and sitting room with sliding doors and aircon
• Covered terrace with outdoor dining
• Swimming pool
• Garden
• Staff quarter
• Utility room
• Gated entrance and large parking area
PRICE FOR SALE
USD $ 650,000
( IDR 10,725,000,000 )
PROPERTY TITLE : LEASEHOLD
LEASE END APRIL 2044
LOCATION
ECHO BEACH - CANGGU
 
                         
            
              
            
            
          
               
            
              
            
            
          
               
            
              
            
            
          
               
            
              
            
            
          
               
            
              
            
            
          
               
                       
                       
                       
                       
                       
                       
                       
                       
                       
                       
                       
                       
                       
                       
                      